Przy metrze i lesie, ogromny taras 19m2!

Mieszkanie na sprzedaż
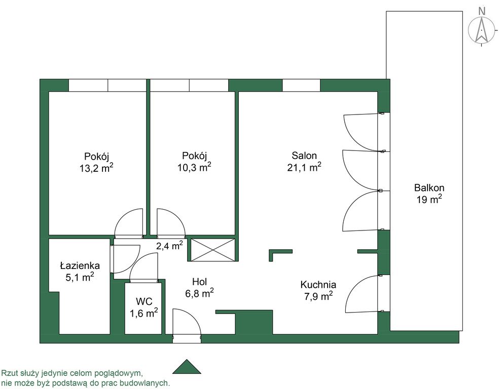
1 143 000,00 PLN, Pow. 69,34 m2
Drukuj ofertę
  • Typ nieruchomości: Mieszkanie
  • Powierzchnia : 69,34 m2
  • Typ transakcji : sprzedaż
  • Liczba pokoi : 3
  • Lokalizacja : Warszawa Targówek , Malborska
  • Rok budowy : 2008
  • Piętro: 2 na 3
  • Numer oferty : 34964543641
  • Cena za m2 : 16 483,99 PLN


English version below

Zapraszam na dzień otwarty, który odbędzie się w środę 08/04/26 od godziny 14:00. Zapraszam po wcześniejszym kontakcie telefonicznym.

KOMFORTOWE 3-POKOJOWE MIESZKANIE Z DUŻYM TARASEM NA OSIEDLU TIVOLI – TUŻ PRZY METRZE KONDRATOWICZA!
Idealna propozycja dla rodziny lub osób ceniących spokój, zieleń oraz świetną komunikację z centrum miasta. Zamknięte, strzeżone osiedle z zadbaną przestrzenią wspólną, bardzo dużym placem zabaw, położone przy ul. Malborskiej, zaledwie kilka minut spacerem od stacji metra Kondratowicza.
W SKRÓCIE: Lokalizacja: Warszawa, Targówek, ul. Malborska – Osiedle Tivoli

W skrócie:
Metraż: 69,34 m²
3 pokoje
Piętro: 2 z 3
Rok budowy osiedla: 2009
Balkon: ok. 20 m²
Komórka lokatorska: 3,70 m²
Miejsce postojowe: garaż podziemny
Winda w budynku
Zamknięte, strzeżone osiedle

SZCZEGÓŁY:

Mieszkanie znajduje się na 2. piętrze trzypiętrowego budynku z windą, na cenionym osiedlu Tivoli. Osiedle składa się z 7 niskich budynków (łącznie 280 mieszkań) i posiada wspólną halę garażową poniżej poziomu 0.
Na terenie osiedla znajduje się zielone patio oraz plac zabaw dla dzieci (tyrolka, pająk, huśtawki, zjeżdżalnie, piaskownica, ciuchcia).
UKŁAD POMIESZCZEŃ:

  • Salon(21,1 m2) z aneksem kuchennym(7,9m2) - (wyjście na duży balkon 19 m2)
  • Sypialnia – 13,2 m2
  • Sypialnia – 10,3 m2
  • Łazienka z WC – 5,1 m2 (wanna z przeszklonym parawanem prysznicowym)
  • Garderoba / schowek – ok. 1,,6 m2
  • Komórka lokatorska – 3,70 m²

Ekspozycja okien:
  • północny wschód – sypialnie
  • wschód – salon z kuchnią


DODATKOWO:
Do mieszkania przynależy miejsce postojowe w garażu podziemnym oraz komórka lokatorska – dodatkowo płatne 55.000zł i 35.000zł.

MIESZKANIE:
Mieszkanie jest przestronne, jasne i bardzo funkcjonalne. Duże okna balkonowe zapewniają dobre doświetlenie wnętrz.
  • podłogi drewniane oraz terakota
  • kuchnia w zabudowie na wymiar, wyposażona w: lodówkę, zmywarkę, płytę indukcyjną, piekarnik oraz systemy cargo
  • duże szafy w zabudowie w obu sypialniach
  • dodatkowo dwie szafy w przedpokoju
  • praktyczne pomieszczenie gospodarcze / garderoba
Mieszkanie użytkowane od 2010 roku, odmalowane w 2022 roku, gotowe do zamieszkania bez dodatkowych nakładów.

BUDYNEK / OSIEDLE:
  • rok oddania: 2009
  • winda
  • osiedle zamknięte i strzeżone
  • zadbana zieleń i patio
  • bardzo duży plac zabaw
  • hala garażowa


LOKALIZACJA I KOMUNIKACJA:
Jedną z największych zalet nieruchomości jest lokalizacja.
W zasięgu kilku minut spacerem:
  • Metro Kondratowicza - 400m
  • Las Bródnowski - 700m
  • CH Atrium Targówek (kino, sklepy, restauracje) - 900m
  • szkoła podstawowa - 1300m
  • przedszkole i żłobek - 1000m


Dogodny i szybki dojazd do Trasy Toruńskiej oraz innych części miasta.


Mieszkanie idealne dla rodziny, pary lub jako bezpieczna inwestycja pod wynajem. Nie czekaj – umów się na prezentację!



A COMFORTABLE 3-BEDROOM APARTMENT WITH A LARGE BALCONY IN THE TIVOLI ESTATE – RIGHT NEAR THE KONDRATOWICZA METRO STATION!
An ideal option for a family or those who value peace, greenery, and excellent transport links to the city center. This gated, secure community with well-maintained common areas is located on Malborska Street, just a few minutes' walk from the Kondratowicza metro station.
IN BRIEF: Location: Warsaw, Targówek, Malborska Street – Tivoli Estate

In short:
Area: 69.34 m²
3 rooms
Floor: 2 of 3
Year of construction of the estate: 2009
Balcony: approx. 20 m²
Storage unit: 3.70 m²
Parking space: underground garage
Elevator in the building
Gated, guarded estate

DETAILS:

The apartment is located on the second floor of a three-story building with an elevator, in the prestigious Tivoli development. The development consists of seven low-rise buildings (totaling 280 apartments) and has a shared underground parking garage.
The estate has a green patio and a playground for children (zip-line, spider, swings, slides, sandbox, choo-choo).
ROOM LAYOUT:
  • Living room (21.1 m2) with kitchenette (7.9 m2) - (exit to a large balcony 19 m2)
  • Bedroom – 13.2 m2
  • Bedroom – 10.3 m2
  • Bathroom with toilet – 5.1 m2 (bathtub with glass shower screen)
  • Wardrobe/storage room – approx. 1.6 m2
  • Storage unit – 3.70 m²

Window exposure:
  • northeast – bedrooms
  • east – living room with kitchen


ADDITIONALLY:
The apartment includes a parking space in the underground garage and a storage unit – additionally paid PLN 55,000 and PLN 35,000.

APARTMENT:
The apartment is spacious, bright, and very functional. Large balcony windows provide ample interior lighting.
  • wooden floors and terracotta
  • a custom-built kitchen equipped with: a refrigerator, a dishwasher, an induction hob, an oven and cargo systems
  • large built-in wardrobes in both bedrooms
  • additionally two wardrobes in the hall
  • practical utility room/wardrobe
The apartment has been in use since 2010, repainted in 2022, ready to move in without any additional costs.

BUILDING / ESTATE:
  • year of completion: 2009
  • elevator
  • gated and guarded estate
  • well-kept greenery and patio
  • a very large playground
  • garage hall


LOCATION AND COMMUNICATION:
One of the biggest advantages of real estate is its location.
Within a few minutes' walk:
  • Kondratowicza Metro - 400m
  • Bródnowski Forest - 700m
  • Atrium Targówek Shopping Center (cinema, shops, restaurants) - 900m
  • primary school - 1300m
  • kindergarten and nursery


Convenient and quick access to the Toruńska Route and other parts of the city.


This apartment is perfect for a family, a couple, or as a safe rental investment. Don't wait – schedule a viewing!

  • LOFT51 Nieruchomości
  • ul. Walecznych 36 lok. 1A
  • 03-916 Warszawa
  •   +48 221 023 820